Google

0800-111-2522

営業時間/9:00~17:30

Google お問い合わせ 資料請求
  • Instagram
  • YouTube
  • LINE
  • TickTok
鳥取店

〒680-0915 ⿃取県⿃取市緑ケ丘3丁⽬9-17

TEL 0120-36-4141

⽶⼦店

〒683-0008 ⿃取県⽶⼦市⾞尾南1-16-25

TEL 0120-63-4141

松江店

〒690-0012 島根県松江市古志原5丁⽬1-1

TEL 0120-64-2525

出雲店

〒693-0028 島根県出雲市塩冶善⾏町10-1

TEL 0800-111-2522

浜⽥店

〒697-0052 島根県浜⽥市港町275-21

TEL 0120-78-4141

益⽥店

〒698-0036 島根県益⽥市須⼦町38-20

TEL 0120-68-4141

  • Instagram
  • YouTube
  • LINE
  • TickTok

WORKS

施工事例

TOP > 施工事例 > 家族とつながる3LDK【S-187】

家族とつながる3LDK【S-187】

3LDK土間収納ランドリールームウォークインクローゼット

こだわりのポイント

■シンプルで飽きのこない、スタイリッシュな外観

浜田市港町モデルハウス 外観

■家族が自然と集まる16帖のLDK

浜田市港町モデルハウス LDK リビング

浜田市港町モデルハウス LDK リビング

浜田市港町モデルハウス LDK リビング

■集中力が高まるスマートなワークスペース

浜田市港町モデルハウス LDK リビング ワークスペース

■家事ラクな横並びダイニング

浜田市港町モデルハウス キッチン

浜田市港町モデルハウス LDK リビング

■無駄のない動線で、家事効率をアップ

浜田市港町モデルハウス 洗面所

浜田市港町モデルハウス 洗面所

浜田市港町モデルハウス ランドリールーム

■木目のクロスでナチュラルテイストに

浜田市港町モデルハウス トイレ

■白で統一した、清潔感あふれる洋室

浜田市港町モデルハウス 洋室

浜田市港町モデルハウス 洋室

■L字型玄関には土間収納付き

浜田市港町モデルハウス 玄関

浜田市港町モデルハウス 土間収納

浜田市港町モデルハウス 玄関

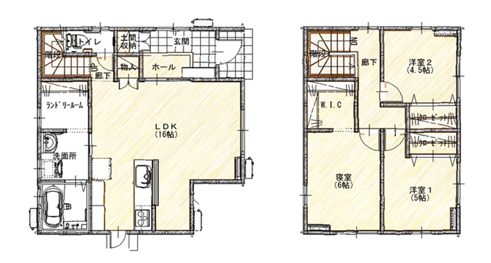
■3LDK

浜田市港町モデルハウス 3LDK 平面図

 

このチャンネルではモデルハウスや施工事例などをご紹介いたします。
ぜひチャンネル登録よろしくお願いいたします。

このチャンネルではモデルハウスや施工事例などを
ご紹介いたします。
ぜひチャンネル登録よろしくお願いいたします。

TEL LINE メール